Die Planung – Ein Rückblick

Die „Bestellung“ die wir damals im Architekturbüro aufgegeben haben, klang eigentlich ganz einfach: Einmal Einfamilienhaus bitte, zu einem tragbaren Budget, mit genügend Platz für 4 Personen und dazu etwas Garten. Danke schön.

Ein Jahr später darf ich sagen, die Planung eines Neubaus von Grund auf, hat was von einem Krimi. Es beginnt unschuldig und Vorfreudig mit der Idee, baut langsam Spannung auf im Gespräch mit der Bank, artet beim Architekten in hemmungsloser Gestaltung aus, nimmt plötzliche Wendungen aufgrund der Finanzen und findet seinen Höhepunkt in einem Ergebnis mit dem wir nicht gerechnet hätten. Aber beginnen wir von vorne:

Grundstück Suche

Die besten Ideen um Geld auszugeben, kommen einem während dem Geld ausgeben. So meine Erfahrung, und getreu diesem Motto kam uns die Idee zum Hausbau an einem warmen Mai Abend an der Pool-Bar des Hotels RIU in Fuerteventura.

Zuhause angekommen wurde erst einmal mit der Bank gesprochen und verschiedenstes abgeklärt bis klar war, dass dieses Projekt eine reale Chance hat. Aber: ohne Boden, kein Haus. Also, ging die Suche los.
Über die Kantonalen Grundstück Verzeichnisse suchten wir leeres Bauland, in einer zahlbaren Grösse und unserem Umfeld. Diese wurden ausgekundschaftet und wir haben uns überlegt ob wir dort würden wohnen wollen. Dann erhielten die Eigentümern ein Schreiben von uns. Liebevoll aufgesetzt, erklärte es wer wir sind und dass wir gerne Geld gegen Land tauschen würden. Über 300 Briefe haben wir versendet. Ungefähr 70 Antworten sind eingegangen, davon ungefähr 7 Verkaufswillige und etwa 2 zahlbare aber nicht wirklich hinreissende…
Long Story short: Etwas Glück und Vitamin B brachte uns in Kontakt mit einem Verkäufer der zwei jungen Familien eine Chance geben wollte und die haben wir ergriffen. Das Grundstück wurde halbiert, gekauft und die Planung begann.

Januar 2022 (BHS 1)

Vor dem Kauf des Grundstücks haben wir vom Atelier Tännler, unserem künftigen Architekturbüro, eine Vorstudie erstellen lassen, um zu sehen was machbar ist. Basierend auf den Plänen dieser Studie fand die erste Sitzung statt. Dabei wurden unabhängig vom Budget die ersten Ideen und Wünsche festgehalten, die da wären:

  • Ein Gefühl von Offenheit (z.B. offene Räume, grosse Fenster, Gallerie, etc.)
  • Formensprache klar und „clean“
  • Warme Farben & wohnliches feeling
  • Hochwertiger Ausbau (Solarpanel, Komfortlüftung, Regenwassertank, …)
Plan aus der Machbarkeitsstudie

Januar 2022 (BHS 2)

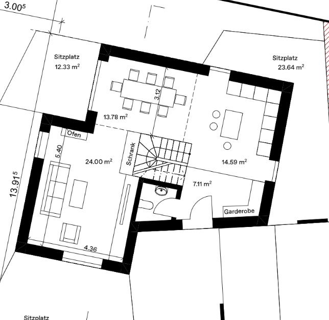
Begrenzt durch einen Bach auf zwei Seiten des Grundstücks, sowie Grenzabständen auf den anderen beiden Seiten, wird die Form des Gebäudes stark vorgegeben. In die Höhe sind wir weniger eingeschränkt. Der Gedanke Platz zu gewinnen indem die Räume auf drei Stockwerke verteilt werden, liegt da nahe. Insbesondere, da wir somit die bereits eingeplante Galerie beim Essbereich beibehalten können.

Februar 2022 (BHS 3)

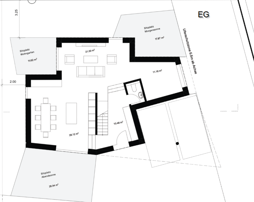
Die drei Stockwerke haben sich nicht bewährt. Es ist einfach zu unpraktisch und die Räume im obersten Stock hätten zu viel Schrägdach. Also zurück zu zwei Etagen. Aber die Raumaufteilung muss optimiert werden. Will man an einem Sommer Abend in der Sonne sitzen, stellt man den Stuhl auf die Südseite des Hauses. Demnach wäre es sinnvoll, nebst der Terrasse auch die Küche und den Essbereich auf dieser Seite zu planen. Das Wohnzimmer gehört ebenfalls in die Nähe der Küche, sonst ist der Transportweg des Popcorns zum Sofa viel zu lang. Auch will man die Einkäufe nicht quer durchs haus tragen bis man beim Kühlschrank ist. Der Eingang muss näher an die Küche. Fazit: Die Küche wird zum Zentrum.
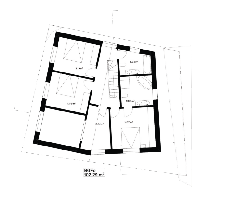
Im OG müssen die beiden Räume aus dem dritten Stock zurück in den zweiten, und überhaupt kann die Raum Nutzung optimiert werden indem der Korridor verkleinert wird.

März 2022 (BHS 4)

Um unser Grundstück zu erreichen, muss ein Bach überquert werden. Ratet mal welchen Ratschlag wir zu diesem Thema mit Abstand am häufigsten gehört haben:

A: Die Zufahrt über das Grundstück der Nachbarn bauen um den Bach zu umfahren
B: Eine Tiefgaragen-Einfahrt die unter dem Bach hindurch geht
C: Eine Zugbrücke
D: Den generellen Verzicht auf eine Zufahrt

Lösung:
Die Antwort ist der dritte Buchstabe vom Alphabet.

Ganz einfach ist das nicht mit dem Bau einer Brücke. Da reden ganz schön viele Menschen mit. Das Amt für Umwelt, die Gemeinde, der Statiker, die Bank, der Kanton, und so weiter. Tatsächlich ist der Bau der Brücke die grössere Attraktion ist als das Haus selber.
Besonders muss dabei die Möglichkeit eines Jahrhundertwassers berücksichtigt werden. Das heisst man muss damit rechnen, dass der Bach bis auf Ufer höhe ansteigt und ganze Bäume mit transportiert. Auch dann muss das Wasser fliessen können, also hat die Brücke um einiges höher zu sein als das Ufer. Zu lang darf sie dann aber nicht sein, sonst haben Parkplatz und Wendeplatz keinen Raum mehr zwischen Haus und Brücke. Und zu steil auch nicht, sonst bocken sich die Autos auf der Spitze auf. Nichts desto trotz, unsere Architekten haben den Mittelweg gefunden und die Brücke wurde genehmigt.

(April 2022 BHS 5 & 6)

Im April ging es tiefer in die Details. Mit Verschiebungen der Zimmer sollen die Räume praktikabler angelegt, Korridore verkleinert und Platzverschwendungen reduziert werden. Davon betroffen ist auch die Miniatur-Galerie im OG bei welcher zwei Türen durchquert werden mussten um vom Schlafzimmer ins Büro zu gelangen. Diese Galerie war eigentlich nie praktikabel, aber irgendwie lustig.

Eine weitere grosse Veränderung ist die Drehung der Küche. Mit den vorherigen Plänen war das OG offener, dafür war das Wohnzimmer gleichzeitig ein Korridor. Es gab zu viele Stellen an denen keine Möbel deponiert werden durften, weil sie sonst im Weg stehen. Durch die Drehung der Küche entsteht eine Trennung der Räume die den Fussweg automatisch am Wohnbereich vorbei leiten und somit eine gemütliche Nische bilden. Auch ist die Küche vom Eingang her besser zugänglich.

Weiter wurde die Gestaltung der Treppe thematisiert. Eine Wendeltreppe wäre vielleicht was gewesen aber Achtung, Spoiler: Es kam anders.
Abgesehen davon, beschäftigten uns Details wie der Einbau von KNX, die Fenster Grössen sowie die Frage ob Raumtrennungen durch Niveau Unterschiede interessant wären, viel mehr als man meinen könnte. Aber das sind Details, die werden erst später wirklich spannend.

Mai 2022 – Januar 2023 (BHS 7 – 14)

Im Mai schien der Grundriss langsam zu stehen und das Gefühl mit der Planung fertig zu sein kam auf. Aber weit gefehlt. Es gab noch so viele „Kleinigkeiten“ zu bestimmen, die doch ärgerlich wären wenn sie nicht thematisiert würden.

Ein grosses Thema war die Gestaltung und Aufteilung der Fenster sowie die allgemeine Licht-Gestaltung (Sonnenlicht & Lampen). Dann wurde geklärt ob wir einen Schutzraum bauen müssen – Darüber haben wir zuvor auch noch nie nachgedacht. Langsam haben wir uns dann an die Farbgestaltung im Innen- und Aussenraum herangetastet sowie Gedanken zur Gestaltung des Treppengeländers, der Bodenbeläge und der Sitzplatz Gestaltung festgehalten. Und, es wurden weitere Möglichkeiten zur Optimierungen der Raumaufteilung gefunden indem Zimmer im OG besser angeordnet sowie der Keller verkleinert wurde um Material und Kosten zu sparen.

Im Juni haben wir den Keller dann wieder vergrössert. 😆 Es stellt sich heraus, dass bei unserem Lehm-Sand Untergrund ein Keller mit dem selben Grundriss wie das EG günstiger kommt, als die Auskragung des EGs statisch auszugleichen. Win/Win würde ich sagen.

Und dann kam ein Abschied. Der Abschied von unserer schönen Galerie.
Wir mussten lernen, dass Luft sehr teuer sein kann. Denn der Bau einer Galerie bedeutet nicht nur, dass im OG an dieser Stelle kein Zimmer positioniert werden kann, sondern auch, dass diese Luft trotzdem Wände, Fenster und Dach hat, die ziemlich viele Materialien benötigen. Dazu kommt, dass wir auf den Platz im OG nicht einfach verzichten können. Die Platz Thematik wurde in der bisherigen Planung sehr elegant gelöst indem das OG über den Parkplätzen auskragend geplant war. Somit haben die Parkplätze auch direkt ein Dach und das Haus hat eine schöne Form. Leider verlangt die Statik für diese Auskragung noch etwas mehr Stahl und Beton und die Auskragung muss mit einer Stütze unterstellt werden. Ausserdem hat das OG mit der Auskragung relativ verwinkelte Form und ist schwieriger zu gestalten als ohne Galerie.
Fazit: Der Verzicht auf die Galerie löst viele, viele Probleme. Und so wurde unsere Galerie zur Geschichte. Eine Geschichte die wir nie vergessen werden.

You’ll always be in our hearts, dear gallery.

Ebenfalls verabschiedet haben wir uns von dem schönen Satteldach. Aufgrund der Vorgegebenen Grenzabstände und Uferschutzzonen verlaufen die Wände unseres neuen Zuhauses nicht ganz parallel. Dazu kommt die L-Form. All das macht aus einem „gewöhnlichen“ Satteldach ein sehr verwinkeltes Satteldach. Wie immer, ist etwas das nicht der Norm entspricht um einiges teurer. Dieser Bomben-Preis hätte unser Budget gewaltig gesprengt. Also weg damit. Ist etwas gewöhnungsbedürftig, aber hat auch was.

Geht es bergab, kriegt man erst richtig Schwung!
Kurz nach diesen Tiefschlägen wurde die Elektroplanung zum Thema. Und Leute echt, ich kann es kaum erwarten in unser KNX verknüpftes Häuschen einzuziehen. Ein grosser Dank an dieser Stelle an die Sturzenegger Planungs GmbH! Voller Elan hat sich Simon auf die Planung der Elektronik gestürzt. Ich kann euch sagen, wenn mein geliebter Gatte erst in Fahrt kommt, hilft keine Bremse mehr. Herr Sturzenegger hat uns hier nicht nur mit Rat und Tat sondern auch mit einer extra Portion Geduld unterstützt.

Durch Unterstützungen für Neubauten mit Minergie Standard, wurden wir ausserdem dazu ermuntert all die sinnvollen aber trotzdem teuren Extras einzubauen. Die Erdsonde war immer angedacht aber Solarpanel und Komfortlüftung wurden aus Budget Gründen mehr als ein mal aus unseren Plänen gestrichen. Schlussendlich verlieren wir dank den Fördergeldern aber nichts, wenn wir die Minergie Komponenten einbauen. Im Gegenteil, wir gewinnen sehr sinnvolle und umweltfreundliche Automationen.

Gegen Ende Jahr stieg der die Spannung nochmals an.
Kennt ihr das Gefühl auf ein Prüfungsergebnis zu warten? So fühlt es sich an, wenn der Bau öffentlich ausgeschrieben wird und die Gemeinde Mitglieder Einsprachen einreichen können. Einsprachen an sich sind eigentlich nichts tragisches und so ziemlich an der Tagesordnung bei Neubauten. Fragen und Unsicherheiten werden auf diese Weise geklärt bevor der Bau bewilligt wird. Und doch nagt das fiese Gefühl, dass das ganze Projekt ins Wasser fallen könnte an einem. Zu unserer Freude konnten sämtliche Punkte die uns zugetragen wurden geklärt werden und die Planun ging weiter, denn es kann immer etwas verbessert werden. So vergingen die Monate. Aber am Ende steht ein Plan. Und schon bald steht ein Haus.

Und wenn wir noch nicht gebaut haben, dann planen wir noch heute. 😉